Vakantiewoning Nieuwerkerk - Geldersche Woningbouw
Home / Projecten / Vakantiewoning Nieuwerkerk

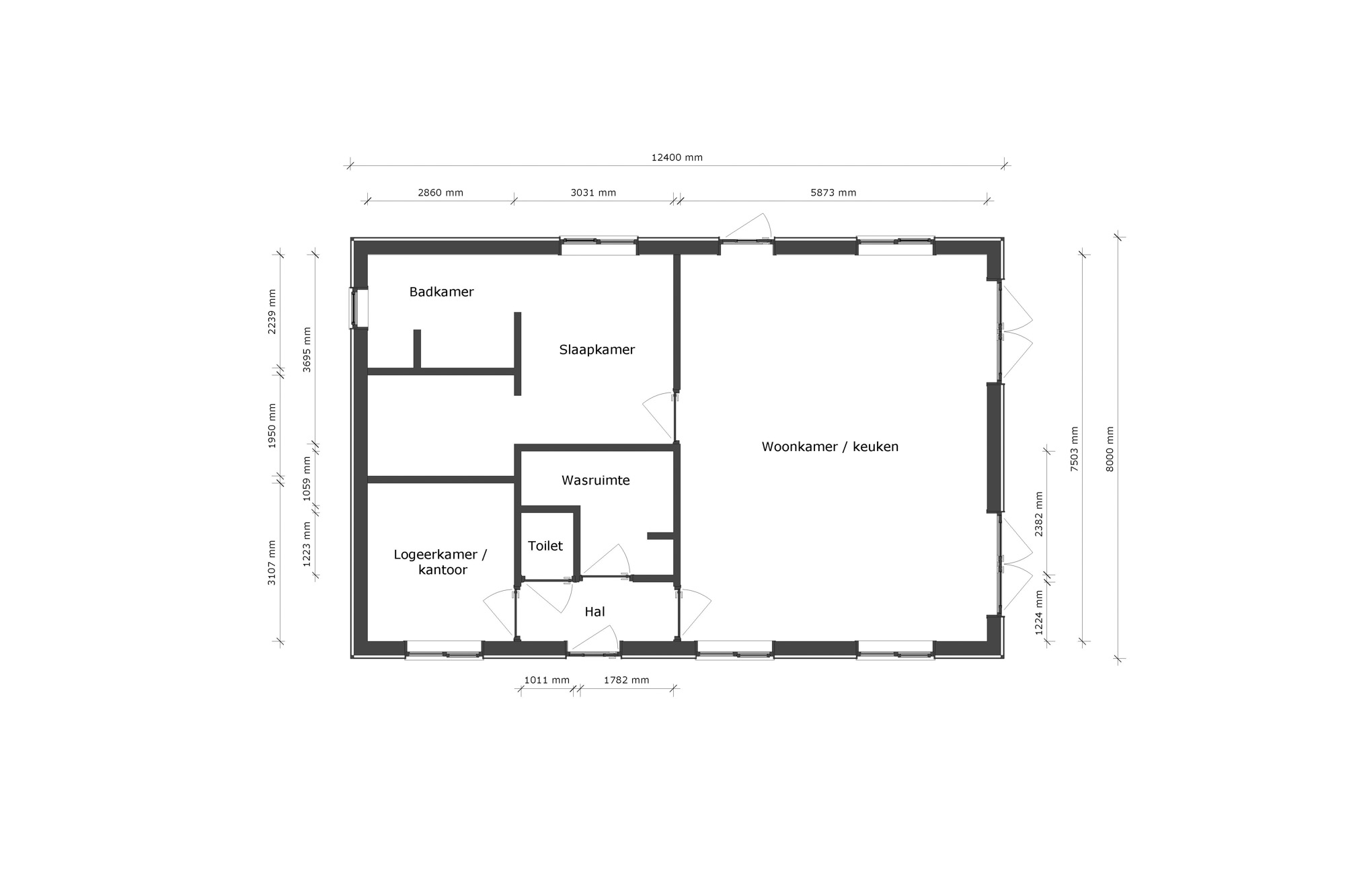
Vakantiewoning Nieuwerkerk

afbeeldingVakantiewoning Nieuwerkerk

Wij bouwen houten woningen op maat

Bestaat er zoiets als de perfecte vakantiewoning? Na duizenden projecten gerealiseerd te hebben weten wij dat wel zeker. En dat zeggen we niet zelf, bekijk gerust de recensies eens. Met trots zijn we daarin de grootste in onze branche!

Onze getalenteerde ontwerpers weten altijd weer hét ontwerp neer te zetten wat esthetisch en praktisch is. Bekijk zelf eens de pagina met verschillende ontwerpen. Dat betekent concreet dat het ontwerp van uw vakantiewoning naadloos aansluit bij uw wensen. Meedenken, advies en jarenlange praktijkervaring zijn de sleutel daarvoor.

Wilt u weten hoe hoog de investering is voor een vakantiewoning naar uw wensen? Vul dan vrijblijvend het formulier in, of neem op een andere manier contact op. In het kort inventariseren we uw wensen en geven direct een prijsindicatie.

Bezoek gerust onze showroom met verschillende gebouwen waaronder een houten woning. Daarnaast geven we u graag een rondleiding door onze moderne werkplaats!

Vraag offerte aan

Projectinformatie

Lengte
12.4 m
Breedte
8 m
Hoogte
5 m
Oppervlakte
89.3 m2
Type
Bungalow Recreatiewoning
Daksoort
Pannendak
Woonlagen
Eén bouwlaag

Prijsindicatie

Prijs van dit maatwerk project.

Basis

185.000

Comfort

220.000

Compleet

265.000

De prijzen zijn in euro's. Aan deze prijzen kunnen geen rechten worden ontleend.

Offerte aanvragen

Bent u enthousiast geworden en benieuwd wat Geldersche Woningbouw voor u kan betekenen? Vraag nu een vrijblijvende offerte aan!

Wij begrijpen dat het kiezen van het perfecte gebouw een belangrijke beslissing is, en we willen u graag helpen bij elke stap van het proces. Met onze jarenlange ervaring en vakmanschap zorgen we ervoor dat uw houten gebouw aan al uw wensen voldoet, of het nu gaat om extra opbergruimte, een gezellige buitenlounge of een multifunctionele werkruimte.

Laat ons weten wat uw ideeën zijn, en ons team staat klaar om een op maat gemaakte offerte voor u samen te stellen.

Stap 1 van 2

Heeft u een kavel?(Vereist)
Sleep bestanden hierheen of
Max. bestandsgrootte: 64 MB.
    Bezoek de showroom

    Bezoek de showroom

    In onze showroom bent u van harte welkom! Hier vindt u onder andere een complete houten woning! Wanneer u het fijn vindt om zomaar even rond te kijken komt u gewoon even langs. Wanneer u een afspraak maakt weten we zeker dat we de tijd hebben om u vrijblijvend op weg te helpen. Wilt u meer weten over de showroom? Bezoek dan onze pagina over de showroom.

    Bezoek inplannen

    Andere klanten bekeken ook

    Wat zeggen klanten over ons

    Geldersche Woningbouw geeft ruimte. Ruimte om te wonen.

    Eigen ontwerpen
    Eigen ontwerpen
    Geen externe architect benodigd.
    Vaste prijs
    Vaste prijs
    Een vaste prijs voor de houtbouw.
    Hoge bouwsnelheid
    Hoge bouwsnelheid
    Binnen twee weken wind- en waterdicht.
    Snelle levertijd
    Snelle levertijd
    Binnen één jaar leveren.