Project Elfstedenhart - Geldersche Woningbouw
Home / Projecten / Project Elfstedenhart

Project Elfstedenhart

afbeeldingProject Elfstedenhart

Wij bouwen houten woningen op maat

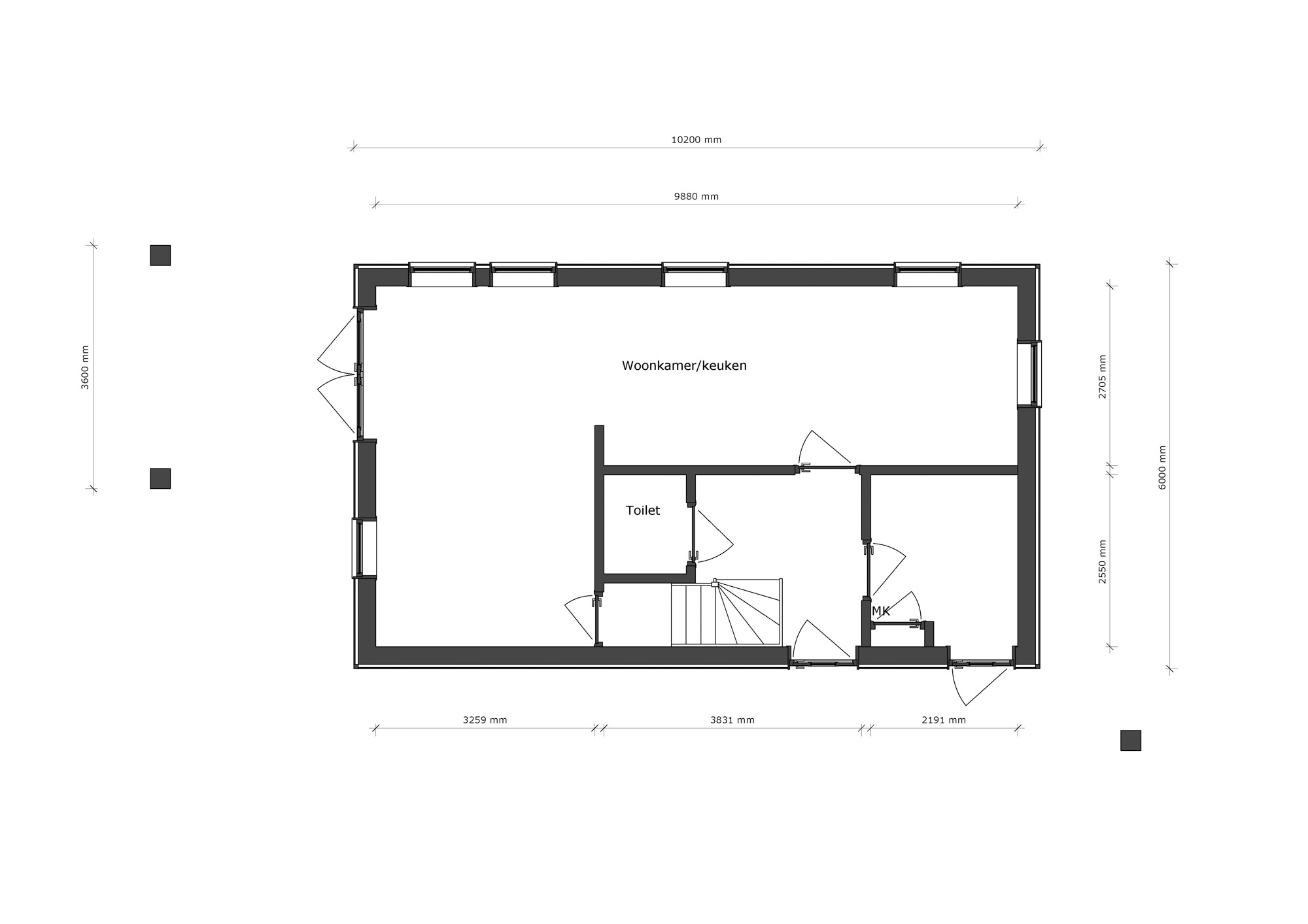
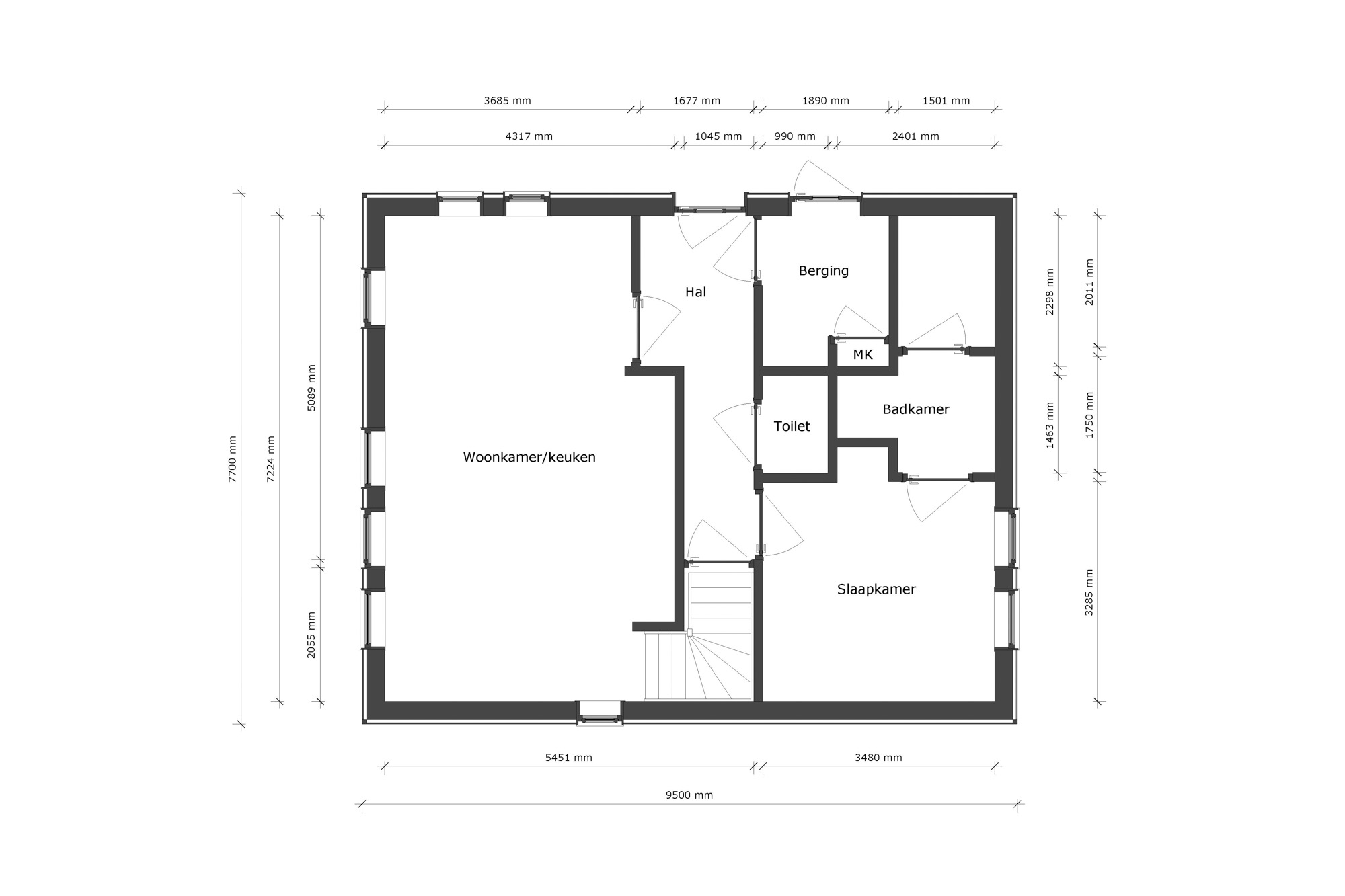
In Friesland hebben wij 14 vakantiewoningen gerealiseerd in opdracht van Landal. In een prachtige groene omgeving, tussen de wateren, staan deze woningen op een ruim vakantiepark.

 

Snel gebouwd door prefab bouw

Op een vakantiepark is er als gast niets zo vervelend als veel lawaai en overlast. Dankzij onze manier van bouwen, hoeven we maar kort op locatie te zijn. De elementen worden in onze fabriek prefab gemaakt, die we vervolgens op locatie in elkaar zetten. Geen jarenlange bouw, binnen enkele maanden zijn de nieuwe (vakantie)woningen klaar voor gebruik.

 

Ruimte voor 4 personen

De woningen zijn circa 74 m2 en voorzien van allerlei voorzieningen:

– 2 slaapkamers voor 2 personen
– badkamer met inloopdouche
– woonkamer
– eethoek
– open keuken

Project Elfstedenhart een voorbeeld van wat wij gebouwd hebben. Doordat wij maatwerk bouwen, is er veel mogelijk en is dit dus geen standaard ontwerp.

 

Projectontwikkeling door Geldersche Woningbouw

Heeft u plannen om een project te ontwikkelen, houten woningen te bouwen of uw vakantiepark uit te breiden? Zoekt u een partij die graag met u meedenkt? Neem contact met ons op en ontdek de mogelijkheden.

Vraag offerte aan

Projectinformatie

Type
Projecten
Daksoort
Pannendak
Woonlagen
Eén bouwlaag Twee bouwlagen

Offerte aanvragen

Bent u enthousiast geworden en benieuwd wat Geldersche Woningbouw voor u kan betekenen? Vraag nu een vrijblijvende offerte aan!

Wij begrijpen dat het kiezen van het perfecte gebouw een belangrijke beslissing is, en we willen u graag helpen bij elke stap van het proces. Met onze jarenlange ervaring en vakmanschap zorgen we ervoor dat uw houten gebouw aan al uw wensen voldoet, of het nu gaat om extra opbergruimte, een gezellige buitenlounge of een multifunctionele werkruimte.

Laat ons weten wat uw ideeën zijn, en ons team staat klaar om een op maat gemaakte offerte voor u samen te stellen.

Stap 1 van 2

Heeft u een kavel?(Vereist)
Sleep bestanden hierheen of
Max. bestandsgrootte: 64 MB.
    Bezoek de showroom

    Bezoek de showroom

    In onze showroom bent u van harte welkom! Hier vindt u onder andere een complete houten woning! Wanneer u het fijn vindt om zomaar even rond te kijken komt u gewoon even langs. Wanneer u een afspraak maakt weten we zeker dat we de tijd hebben om u vrijblijvend op weg te helpen. Wilt u meer weten over de showroom? Bezoek dan onze pagina over de showroom.

    Bezoek inplannen

    Andere klanten bekeken ook

    Wat zeggen klanten over ons

    Geldersche Woningbouw geeft ruimte. Ruimte om te wonen.

    Eigen ontwerpen
    Eigen ontwerpen
    Geen externe architect benodigd.
    Vaste prijs
    Vaste prijs
    Een vaste prijs voor de houtbouw.
    Hoge bouwsnelheid
    Hoge bouwsnelheid
    Binnen twee weken wind- en waterdicht.
    Snelle levertijd
    Snelle levertijd
    Binnen één jaar leveren.