Briljantwoning Bora - Geldersche Woningbouw
Home / Projecten / Briljantwoning Bora

Briljantwoning Bora

afbeeldingBriljantwoning Bora

Compacte woning, groots doordacht

De Bora is ontwikkeld voor wie slim, compact en betaalbaar wil wonen, zonder in te leveren op kwaliteit. Wij vinden dat de mogelijkheid om vrijstaand te wonen niet alleen weggelegd moet zijn voor een kleine groep. Met deze woningen zetten we een concrete stap om vrijstaand wonen voor meer mensen bereikbaar te maken.

Deze woning is volledig vooraf uitgedacht en geoptimaliseerd op basis van onze jarenlange praktijkervaring. Daardoor is iedere vierkante meter functioneel benut en klopt het ontwerp tot in detail. U kiest voor een woning die zich in de praktijk al heeft bewezen.

Doordat de Bora al volledig is ontworpen en technisch is uitgewerkt, vervallen ontwerpkosten en kosten voor technische engineering. Alle tekeningen en berekeningen zijn gereed, waardoor het vergunningstraject en de voorbereiding efficiënt verlopen. Dit zorgt voor een scherpe prijs en een voorspelbaar bouwproces. Zo combineren we betaalbaarheid met de kwaliteit en betrouwbaarheid die u van ons mag verwachten.

Wilt u meer weten over de Bora? Neem contact op of bezoek onze showroom voor meer inspiratie.

Vraag offerte aan

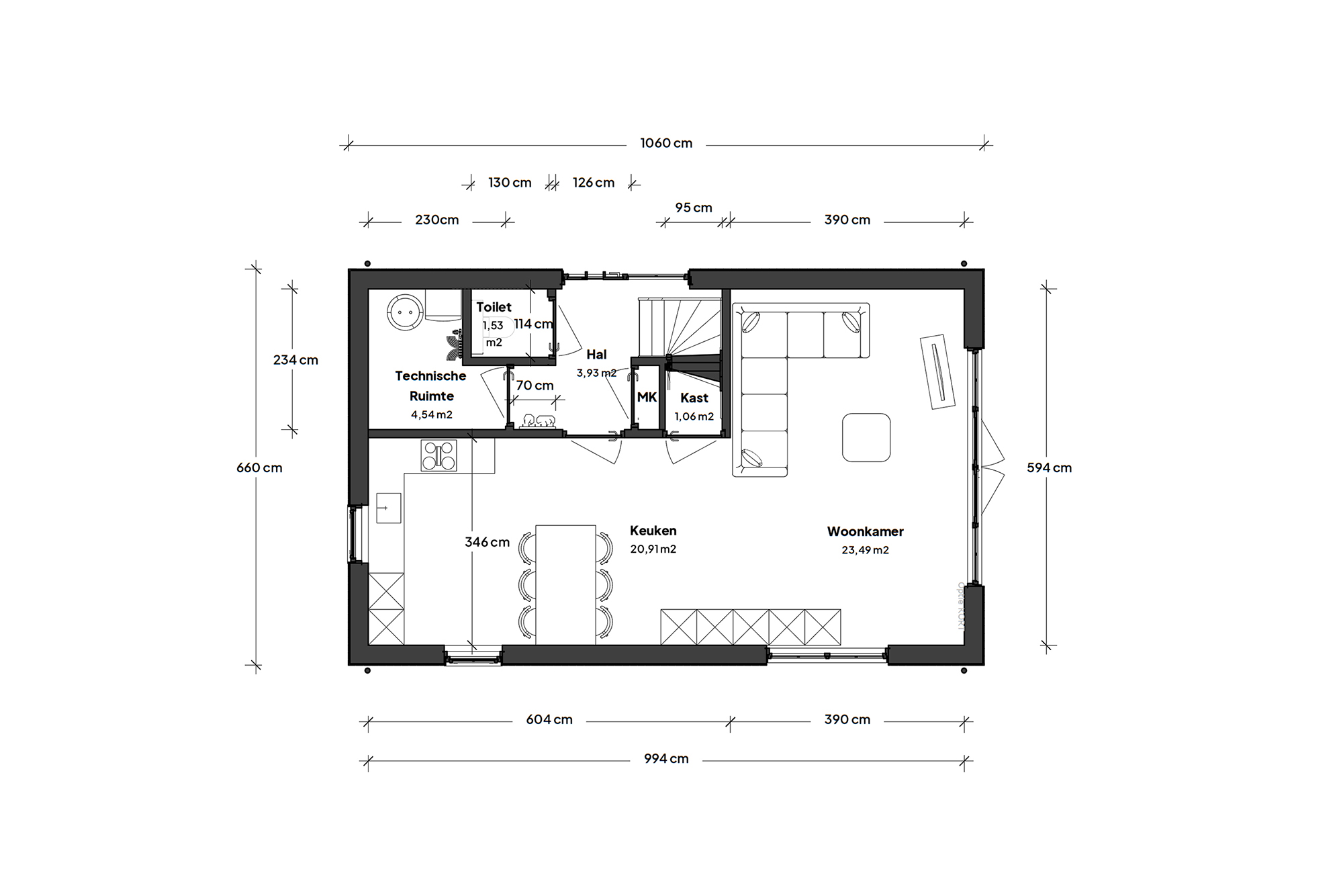
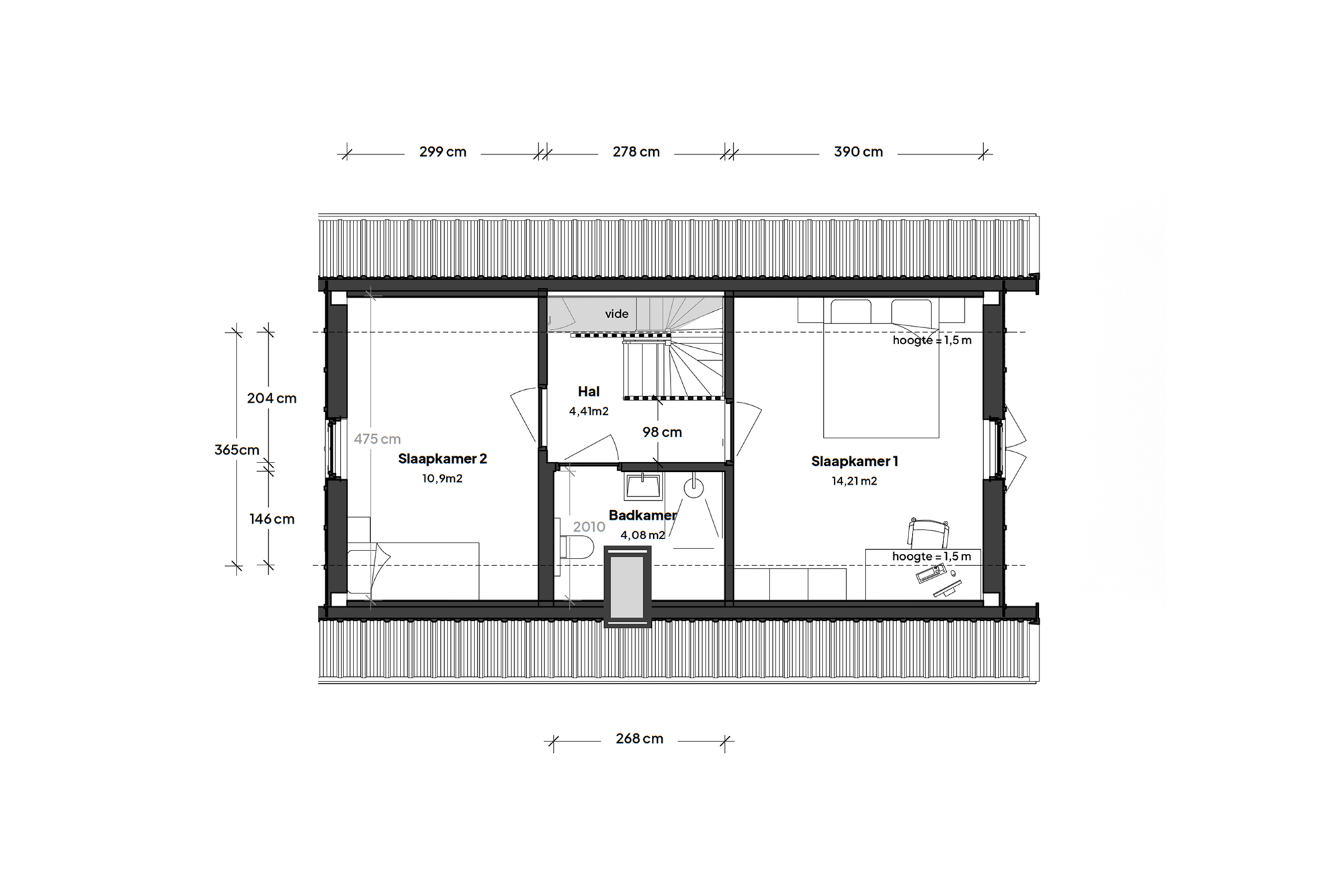
Projectinformatie

Lengte
10.6 m
Breedte
6.6 m
Hoogte
7.1 m
Oppervlakte
91.4 m2
Type
Vrijstaande woning
Daksoort
Sandwichpanelen
Woonlagen
Twee bouwlagen

Prijsindicatie

Prijs van dit maatwerk project.

Basis

182.000

Comfort

228.500

Compleet

278.000

De prijzen zijn in euro's. Aan deze prijzen kunnen geen rechten worden ontleend.

Offerte aanvragen

Bent u enthousiast geworden en benieuwd wat Geldersche Woningbouw voor u kan betekenen? Vraag nu een vrijblijvende offerte aan!

Wij begrijpen dat het kiezen van het perfecte gebouw een belangrijke beslissing is, en we willen u graag helpen bij elke stap van het proces. Met onze jarenlange ervaring en vakmanschap zorgen we ervoor dat uw houten gebouw aan al uw wensen voldoet, of het nu gaat om extra opbergruimte, een gezellige buitenlounge of een multifunctionele werkruimte.

Laat ons weten wat uw ideeën zijn, en ons team staat klaar om een op maat gemaakte offerte voor u samen te stellen.

Stap 1 van 2

Heeft u een kavel?(Vereist)
Sleep bestanden hierheen of
Max. bestandsgrootte: 64 MB.
    Bezoek de showroom

    Bezoek de showroom

    In onze showroom bent u van harte welkom! Hier vindt u onder andere een complete houten woning! Wanneer u het fijn vindt om zomaar even rond te kijken komt u gewoon even langs. Wanneer u een afspraak maakt weten we zeker dat we de tijd hebben om u vrijblijvend op weg te helpen. Wilt u meer weten over de showroom? Bezoek dan onze pagina over de showroom.

    Bezoek inplannen

    Andere klanten bekeken ook

    Wat zeggen klanten over ons

    Geldersche Woningbouw geeft ruimte. Ruimte om te wonen.

    Eigen ontwerpen
    Eigen ontwerpen
    Geen externe architect benodigd.
    Vaste prijs
    Vaste prijs
    Een vaste prijs voor de houtbouw.
    Hoge bouwsnelheid
    Hoge bouwsnelheid
    Binnen twee weken wind- en waterdicht.
    Snelle levertijd
    Snelle levertijd
    Binnen één jaar leveren.