Woning Aven is ontwikkeld voor wie bewust kiest voor ontwerpkwaliteit, woonplezier en toekomst. In samenwerking met BOXXIS architecten is deze woning ontstaan waarin architectonische visie en bouwkundige praktijkervaring samenkomen. Het resultaat is een woning met klasse, een sterk lijnenspel en veel aandacht voor licht, ruimte en leefkwaliteit.
Het ontwerp is volledig gericht op levensloopbestendig wonen. Niet alleen passend bij uw woonwensen van vandaag, maar ook logisch en comfortabel in de toekomst. Iedere ruimte is zorgvuldig ontworpen, met aandacht voor gebruiksgemak, beleving en balans tussen esthetiek en functionaliteit.
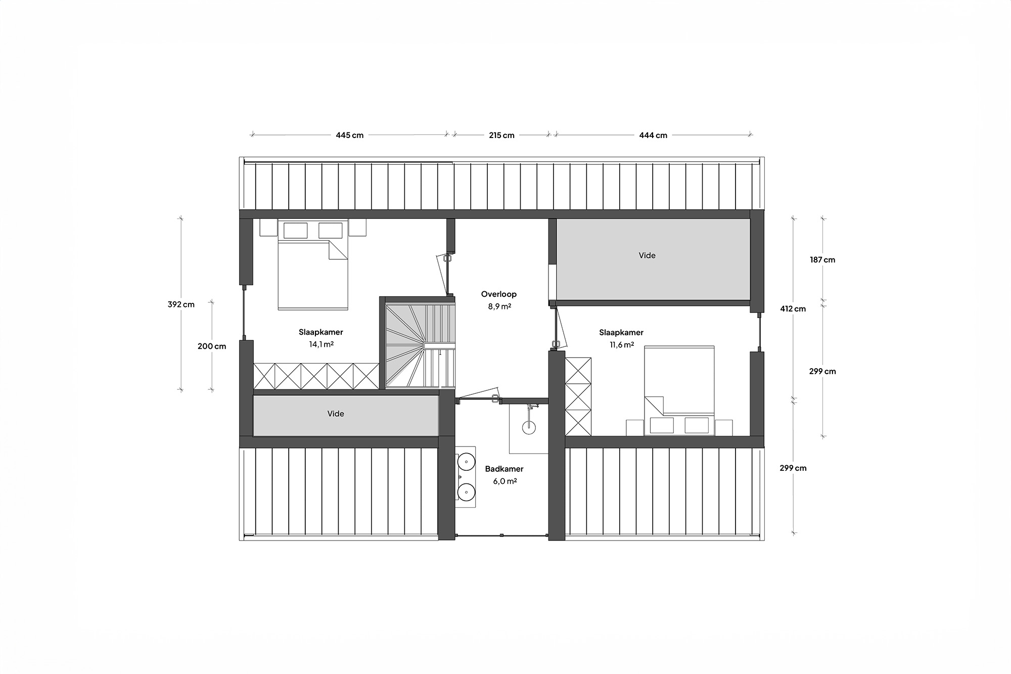
Deze woning is vooraf volledig ontworpen en technisch uitgewerkt. Alle tekeningen en berekeningen zijn gereed, waardoor het vergunningstraject efficiënt kan verlopen en het bouwproces voorspelbaar blijft. Door deze aanpak zijn de woningen voordeliger dan een vergelijkbare maatwerkwoning, zonder concessies te doen aan ontwerpkwaliteit en uitstraling.
Wilt u meer weten over woning Aven? Neem contact op of bezoek onze showroom voor meer inspiratie.
Bent u enthousiast geworden en benieuwd wat Geldersche Woningbouw voor u kan betekenen? Vraag nu een vrijblijvende offerte aan!
Wij begrijpen dat het kiezen van het perfecte gebouw een belangrijke beslissing is, en we willen u graag helpen bij elke stap van het proces. Met onze jarenlange ervaring en vakmanschap zorgen we ervoor dat uw houten gebouw aan al uw wensen voldoet, of het nu gaat om extra opbergruimte, een gezellige buitenlounge of een multifunctionele werkruimte.
Laat ons weten wat uw ideeën zijn, en ons team staat klaar om een op maat gemaakte offerte voor u samen te stellen.
In onze showroom bent u van harte welkom! Hier vindt u onder andere een complete houten woning! Wanneer u het fijn vindt om zomaar even rond te kijken komt u gewoon even langs. Wanneer u een afspraak maakt weten we zeker dat we de tijd hebben om u vrijblijvend op weg te helpen. Wilt u meer weten over de showroom? Bezoek dan onze pagina over de showroom.
Bezoek inplannen